一、概述
旋转密封阀(简称 RSV)在干熄焦装置中是一个非常重要的设备,它设置在排焦装置振动给料器的下方,将冷却到平均约 200 度以下的焦炭连续定量地从干熄槽向外排出,使焦炭排出温度均匀,具有良好的密封性能和稳定的工况,被熄焦炭的品质得到可靠保证。
由于干熄焦装置是一个密闭的系统,对循环气体的泄漏量有严格的要求,同时由于焦炭对设备有较强的冲刷,所以,要求 R S V 即能有效地控制循环气体和粉尘的对外泄漏,同时要求衬板具有良好的耐磨性,保证设备能连续稳定运行。
目前国内已投产的大多数CDQ所用的RSV都是引进日铁工程技术的进口设备,价格较高。为了增加国产化比例、进一步降低成本,方便客户国内采购与更换需求,我公司决定在保证质量的前提下将 R S V 国产化。由于日铁工程技术公司是我公司的母公司之一,对此项工作全力支持,将全套制造图提供我公司,并派制造专家指导及监制。
我公司经过日本考察和研究比较,在中国国内选定了制作厂家,签订了长期合作协议。严格按照CDQ工艺要求和日铁工程技术株式会社的规格进行制造和检查。完全符合日铁工程技术株式会社标准的RSV于2006年11月正式投入使用。
二、技术性能
1.使用条件
(1) 物料状态:焦炭粒度 0~150mm
(2) 适用温度:≤200℃
2. 性能参数
排焦能力:60~280t/h
减速机与阀本体连接方式:直连式(根据尺寸情况可采用链条连接)
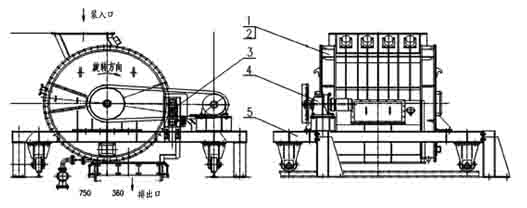
参考图:旋转密封阀(链条式)
.jpg)